Ein Haus mit Charakter
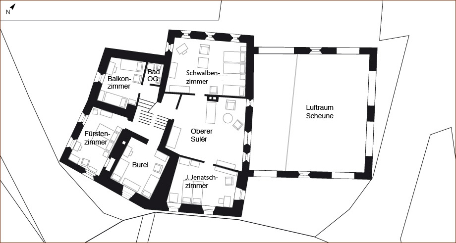
Sanfte, sorgfältige Renovierungen haben die Chesa Wazzau zu einem seltenen Liebhaberobjekt gemacht: Küche, Korridor und Bäder sind mit Granitböden ausgestattet, das Bad und die Küche werden über eine Fussbodenheizung geheizt. Im Erdgeschoss des Hauses befinden sich zwei Stüvas (Wohnstuben), eine geräumige Gewölbeküche, ein grosses Bad mit Gewölbedecke, ein Einbettzimmer und ein grosser Vorraum (Suler), der zum gemütlichen Verweilen in grosser Runde einlädt. In den beiden oberen Etagen sind fünf Schlafzimmer und ein kleines Bad untergebracht.

Ein Juwel im Engadin
Die Chesa Wazzau, ein massiger Steinbau mit breiten Satteldach, ist ein typisches Engadiner Bauernhaus. Charakteristisch sind die kleinen Fenster, die aussehen wie Schiessscharten: Je kleiner die Fenster, desto weniger Wärme gibt das Haus nach aussen ab. Damit trotzdem möglichst viel Licht in die Wohnräume gelangt, sind die Fensternischen nach aussen wie Trichter gebaut. Die Stubenfenster sind auf die Strasse oder den Vorplatz ausgerichtet – schliesslich will man ja wissen, was im Dorf so passiert.
Umgebung & Lage
Die Chesa Wazzau bietet Platz für bis zu 12 Personen, die einen Urlaub im schönen Oberengadin verbringen möchten. Ausflugsziele gibt es reichlich: Das beschauliche Örtchen Bever ist umgeben von reizvoller Landschaft und St. Moritz ist nur wenige Autominuten entfernt.
Umgebung entdecken


Für Urlaub, Auszeit oder Veranstaltungen.
Die vielseitigen Räumlichkeiten der Chesa Wazzau eignen sich nicht nur für kurze oder lange Ferienaufenthalte, sondern auch als beindruckender Ort für Ihre privaten Anlässe oder Festivitäten. Dank der grosszügig ausgestatteten Küche können Sie Ihre Gäste kulinarisch verwöhnen. Lassen Sie sich inspirieren von den Möglichkeiten der Chesa Wazzau.
Ausstattung
Das Chesa Wazzau in Bever ist ein originales Engadinerhaus aus dem 17. Jahrhundert. 278 m² Wohnraum auf 2 - 3 Etagen. Sanfte Renovationen wurden sorgfältig geplant und ausgeführt. Granitböden für Küche*, Korridor und Bad* (*mit Fußbodenheizung) verlegt, alte Gewölbe kamen zum Vorschein. Ein Liebhaberobjekt das seinesgleichen sucht. Im Erdgeschoss ist eine geräumige Gewölbeküche, ein großes Bad mit Gewölbedecke, 2 Arven-Wohnstuben (Stüvas), ein Einbettzimmer und ein großer Eingangsraum (Sulèr), welcher zum Essen und Sein mit 8 - 12 Personen kaum gemütlicher sein könnte. In den oberen Etagen befinden sich 5 Schlafzimmer, ein Zwischenraum mit Sofa, 2 Kinderbetten und Bibliothek, sowie ein kleines Bad mit Dusche. Mehr als ein Duzend Originalbilder - Öl auf Leinwand und Öl auf Papier, sowie diversen Holzschnitten von namhaften Schweizer Kunstmaler.
Stil
- done Landhaus
- done Höhenluft
- done authentisch
- done modern
Service
- done Haustier nach Absprache
- done Nichtraucherhaus
- done Willkommensgeschenk
- done Wasser, Strom, Heizung
- done Parkplatz
- done WLAN Internet
Übersicht
- done Engadinerhaus
- done Parzelle 700 qm
- done Wohnfläche 275 qm
- done 12 Personen max.
- done 10 Zimmer
- done 6 Schlafzimmer
- done 2 Etagen
- done Garten
Ausstattung
- done Internet
- done Privatgarten
- done Gartenmöbel
- done Liegestühle
- done Bibliothek
- done Bügeleisen und -brett
- done WLAN Internet
- done Babybett
- done Hochstuhl
- done Spielzeug
- done 2 – 3 Davoserschlitten
- done 2 Föhn
- done Originalbilder
- done CD Player
- done DVD Player
- done Flat-Screen - TV
- done Blick in die Berge
- done Balkon
- done Geschirrspüler
- done 2 Kühlschränke
- done 1 Tiefkühlschrank
- done Parkplätze
- done Waschmaschine
- done Tumbler
- done Zentralheizung



































